1,5 izb. byt, Z.Chalupovej, Petržalka, Slnečnice
229.900,- €
6.925.967,40 SKK
Štát: Slovensko
Okres: Bratislava - Petržalka
Mesto: Bratislava - Petržalka
Ulica: Zuzany Chalupovej
Vlastníctvo: osobné
Druh:
2-izbový byt
- novostavba
Typ:
predaj
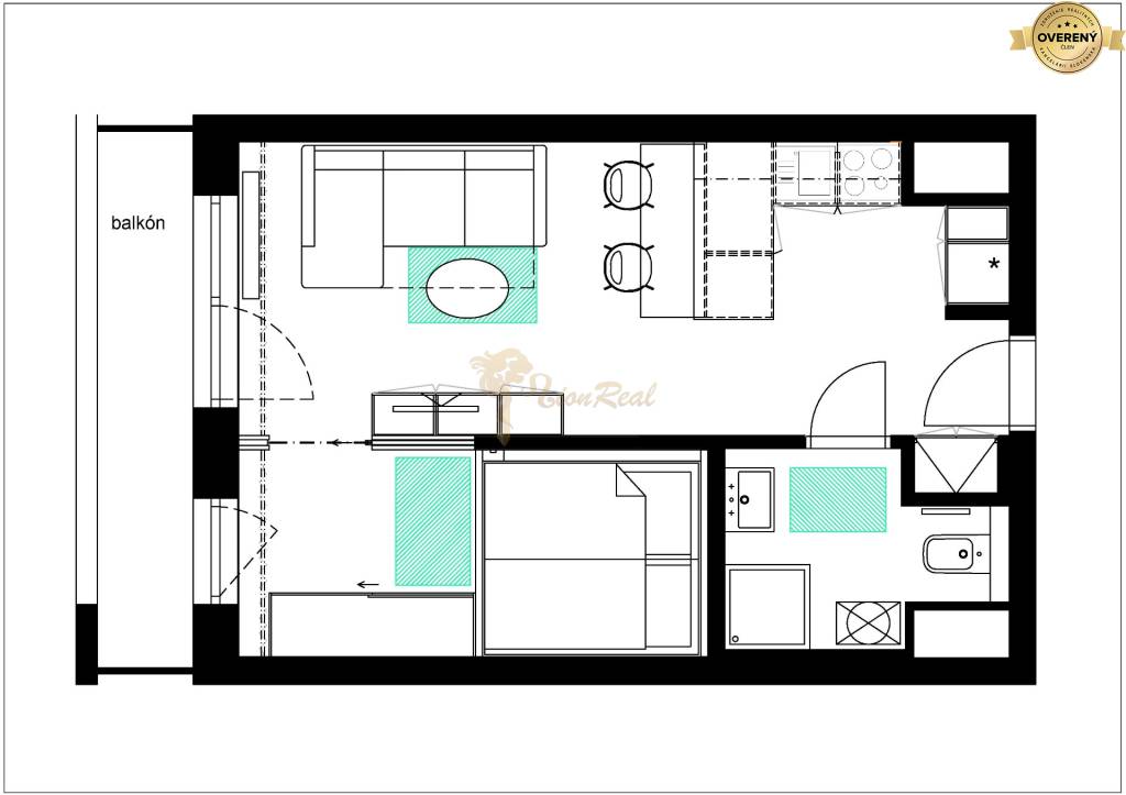
Ponúkame na predaj 1,5 izbový byt dispozične upravený na 2 izbový byt v lokalite Slnečnice – Zóna Mesto, ul. Z.Chalupovej, Petržalka.
Výmera bytu je 34 m2 + 5,46 m2 balkón. Byt sa nachádza na 1 poschodí (druhé nadzemné podlažie) s orientáciou na západ. V rámci objektu sa nachádza vnútroblok s detským ihriskom s prístupom na čip.
Dispozícia: vstupný priestor, kuchyňa, kúpeľňa, obývačka, spálňa (oddelená od obývacej izby posuvnými dverami), balkón
Byt sa predáva kompletne zariadený nábytkom vrátane spotrebičov - vstavané úložné priestory v chodbe, obývačke a v spálni, kuchynská linka, chladnička s mrazničkou, umývačka riadu, varná doska, elektrická rúra, práčka, jedálenské sedenie, stoličky, sedačka, konferenčný stolík, posteľ.
V blízkosti bytu sa nachádza množstvo obchodov a služieb rôzneho zamerania, detské centrum, park, detské ihriská, workout zóna a napojenie na Dunajskú hrádzu. V bezprostrednej blízkosti sú tiež taktiež zástavky autobusu a električky.
Parkovanie: byt je bez parkovacieho miesta. Možnosť prenájmu alebo kúpy parkovacieho miesta v obytnej zóne.
Byt je kúpou ihneď k dispozícii.
Cena bytu je 229.900,-Eur a bude k nej pripočítaná sprostredkovateľská odmena vo výške 4.000,- Eur, spolu 233.900,- EUR.
V rámci sprostredkovateľskej odmeny Vám zabezpečíme:
- kompletné preverenie právneho stavu a tiarch danej nehnuteľnosti
- kópiu LV prípadne katastrálnej mapy s kolkom na právne účely
- notárske poplatky za overenie podpisov na zmluvách
- správny poplatok za bežný vklad vlastníckeho práva do katastra
- kompletný právny servis zabezpečený interným právnikom /vypracovanie zmluvy o budúcej zmluve, kúpnej zmluvy, návrhu na vklad, plnomocenstiev, dodatkov, preberacieho protokolu....
Informácie o ponúkanej nehnuteľnosti a obhliadky si môžete dohodnúť na telefónnom čísle: 0907 407 754, 0948 598 398, 0903 853 035, prípadne email: lionreal@lionreal.sk
Pri kontaktovaní emailom, Vás prosíme uvádzať na Vás i telefonický kontakt.
V prípade záujmu Vám zabezpečíme BEZPLATNÝ kompletný hypotekárny servis. K dispozícii Vám bude náš hypotekárny špecialista, ktorý Vám dojedná najvýhodnejšie podmienky..
Poloha nehnuteľnosti na mape:
Podrobné informácie:
| Poschodie | 1/vyššie poschodie |
| Počet poschodí | 6 |
| Počet izieb | 2 |
| Celková rozloha | 39.46 m² |
| Úžitková plocha | 34 m² |
| Vlastníctvo | osobné |
| Status | aktívne |
| Balkón | 5.46 m² |
| Výťah | áno |
| Postavené z | Zmiešané |
Ďalšie fotografie nehnuteľnosti:
- Naša ponuka
- Predaj
- Prenájom
- Náš team
- Sledované ponuky
- Ponúknite nám
- Sme partnerom
- O nás
- Kariéra
- Kontakt LIONREAL, s.r.o.
Prevádzka: Drieňová 34
82102 Bratislava
HYPOTÉKA
- Chcete nové bývanie?
- Chýbajú Vám financie?
- Potrebujete
- najvýhodnejší úver?
- Cenník
PRE NAŠICH KLIENTOV
- HĽADAME BYTY V BRATISLAVE.
- SPOĽAHLIVO A BEZPEČNE!
INFOLINKA
0907 407 754 0948 598 398









